Szczecin, Niebuszewo, Księcia Barnima III Wielkiego

Lokal na wynajem

Opis nieruchomości

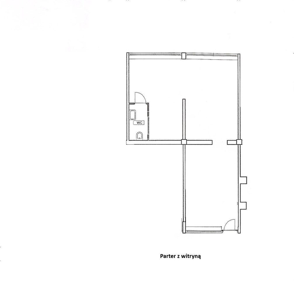
Do wynajęcia lokal użytkowy (parter z witryną) położony przy ul. Księcia Barnima III Wielkiego.
Lokal położony jest w budynku handlowo-usługowym, posiada jedno wejście od frontu. Lokal składa się z trzech pomieszczeń: sali głównej z witryną, magazynu oraz wc.
Ogrzewanie z sieci miejskiej, ciepła woda - podgrzewacz elektryczny.
 
Opłaty:
- czynsz najmu 2 000,00 zł netto (do czynszu najmu należy doliczyć podatek VAT w stawce 23%),
- czynsz do spółdzielni 1 386,93 zł netto (do czynszu najmu należy doliczyć podatek VAT w stawkach: 8% woda i kanalizacja, 23% eksploatacja, ogrzewanie oraz pozostałe składowe czynszu),
- prąd wg zużycia.
- kaucja dwumiesięczna.

Lokal pusty, w trakcie remontu. W lokalu prowadzona była działalność związana z sprzedażą artykułów spożywczych i monopolowych.

Możliwość wynajęcia dodatkowej powierzchni 130 m2 (48,7 m2 parter z witryną i dodatkowym wejściem oraz 81,30 m2 w piwnicy).

Polecam.


 

Nota prawna

Opis oferty zawarty na stronie internetowej sporządzany jest na podstawie oględzin nieruchomości oraz informacji uzyskanych od właściciela, może podlegać aktualizacji i nie stanowi oferty określonej w art. 66 i następnych K.C.

Szczegóły oferty

Symbol oferty NGK-LW-490
Powierzchnia 48,95 m²
Powierzchnia użytkowa 48,95 m²
Liczba pokoi 3
Piętro parter
Rodzaj budynku budynek wolnostojący
Kaucja zabezp. 4000
Opłaty w czynszu wywóz śmieci, woda, ogrzewanie, administracja
Opłaty wg liczników prąd
Liczba pięter w budynku 1
Stan lokalu dobry
Stan prawny Spółdzielcze własnościowe
Typ kaucji dwumiesięczna
Mies. czynsz admin. 1 387 PLN
Okna PCV
Instalacje dobre
Rodzaj lokalu jednopoziomowy
Przeznaczenie lokalu handlowo-usługowy, magazynowy
Gaz brak
Woda tak
Dojazd asfalt
Otoczenie zabudowa wielorodzinna
Ogrzewanie c.o.
Alarm tak
Usytuowanie dwustronne
Położenie lokalu ruchliwa ulica
Witryna wystawowa duża
Wejście od ulicy

Lokalizacja

Podobne oferty

lokal na wynajem - Szczecin, Stare Miasto

lokal na wynajem

Szczecin, Stare Miasto
  48,00 m2 52,08 zł/m2
lokal na wynajem - Szczecin, Centrum

lokal na wynajem

Szczecin, Centrum
  43,00 m2 46,51 zł/m2
lokal na wynajem - Szczecin, Centrum

lokal na wynajem

Szczecin, Centrum
  40,00 m2 45,00 zł/m2
lokal na wynajem - Szczecin, Centrum

lokal na wynajem

Szczecin, Centrum
  46,00 m2 43,48 zł/m2

Napisz do nas

Proszę wypełnić to pole
Proszę wypełnić to pole
Proszę wypełnić to pole
Proszę wypełnić to pole

Ta strona wykorzystuje pliki cookies w celach statystycznych oraz w celu dostosowania naszych serwisów do indywidualnych potrzeb klientów. Zmiany ustawień dotyczących plików cookie można dokonać w dowolnej chwili modyfikując ustawienia przeglądarki. Korzystanie z tej strony bez zmian ustawień dotyczących cookies oznacza, że będą one zapisane w pamięci urządzenia.

rozumiem