Szczecin, Centrum

Lokal na wynajem

Opis nieruchomości

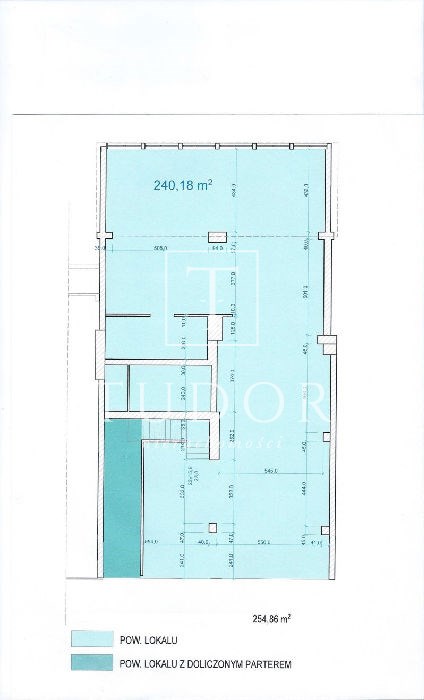
Posiadam do wynajęcia lokal handlowy przy al. Wojska Polskiego dwu kondygnacyjny w ścisłym Centrum miasta. Lokal posiada na długości 11,5m na parterze i na piętrze wysokie witryny. Wysokość pomieszczeń 3,2m. Powierzchnia parteru 157,56m2, piętra 254,86, łącznie 412,42. Możliwość wynajęcia osobno parteru lub piętra Proponowana cena za wynajem całości 30 000,00netto plus opłaty. Kaucja jednomiesięczna. W związku z tym, iż można wynająć osobno powierzchnie parteru czy piętra cena podlega negocjacją, jesteśmy otwarci na propozycje. Pod lokalem mieści się również piwnica o powierzchni 160m2 Właściciel jest w stanie przystosować lokal do oczekiwań wynajmującego.

Nota prawna

Opis oferty zawarty na stronie internetowej sporządzany jest na podstawie oględzin nieruchomości oraz informacji uzyskanych od właściciela, może podlegać aktualizacji i nie stanowi oferty określonej w art. 66 i następnych K.C.

Szczegóły oferty

Symbol oferty LH1-LW-9552
Powierzchnia 412,42 m²
Piętro parter
Standard
Wystawa okien Lokal posiada na długości 11,5m na parterze i na piętrze wysokie witryny.
Stan lokalu do wprowadzenia
Typ kaucji jednomiesięczna
Okna nowe PCV
Rodzaj lokalu wielopoziomowy
Przeznaczenie lokalu biurowy, handlowo-usługowy, handlowy, usługowy
Dojazd asfalt

Podobne oferty

lokal na wynajem - Szczecin, Niemierzyn

lokal na wynajem

Szczecin, Niemierzyn
  400,00 m2 75,00 zÅ‚/m2
lokal na wynajem - Szczecin, Pomorzany

lokal na wynajem

Szczecin, Pomorzany
  750,00 m2 45,00 zÅ‚/m2

Napisz do nas

Proszę wypełnić to pole
Proszę wypełnić to pole
Proszę wypełnić to pole
Proszę wypełnić to pole

Ta strona wykorzystuje pliki cookies w celach statystycznych oraz w celu dostosowania naszych serwisów do indywidualnych potrzeb klientów. Zmiany ustawień dotyczących plików cookie można dokonać w dowolnej chwili modyfikując ustawienia przeglądarki. Korzystanie z tej strony bez zmian ustawień dotyczących cookies oznacza, że będą one zapisane w pamięci urządzenia.

rozumiem