Szczecin, Niebuszewo, Księcia Barnima III Wielkiego

Lokal na wynajem

Opis nieruchomości

Do wynajęcia duży lokal użytkowy, dwupoziomowy (parter z witryną oraz pomieszczenia piwniczne) położony przy ul. Księcia Barnima III Wielkiego.
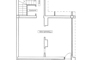
Lokal położony jest w budynku handlowo-usługowym, posiada dwa wejścia: jedno od frontu, drugie z tyłu budynku dla dostawców. Lokal składa się z dziewięciu pomieszczeń:

Parter: sala główna z witryną, biuro oraz kantorek. Łączna powierzchnia parteru 48,70 m2
Piwnica: cztery pomieszczenia magazynowe, zaplecze socjalne z kuchnią i pralnią oraz wc. Łączna powierzchnia piwnic 81,30 m2.

Ogrzewanie z sieci miejskiej, ciepła woda - podgrzewacz elektryczny.
 
Opłaty:
- czynsz najmu 3 500,00 zł netto (do czynszu najmu należy doliczyć podatek VAT w stawce 23%),
- czynsz do spółdzielni 1 007,97 zł netto (do czynszu najmu należy doliczyć podatek VAT w stawkach: 8% woda i kanalizacja, 23% eksploatacja, ogrzewanie oraz pozostałe składowe czynszu),
- prąd wg zużycia.
- kaucja dwumiesięczna.

Obecnie w lokalu prowadzona jest działalność związana z sprzedażą artykułów spożywczych i monopolowych.

Możliwość wynajęcia dodatkowej powierzchni 48,95 m2 (parter z witryną i dodatkowym wejściem).

Polecam.
 

Nota prawna

Opis oferty zawarty na stronie internetowej sporządzany jest na podstawie oględzin nieruchomości oraz informacji uzyskanych od właściciela, może podlegać aktualizacji i nie stanowi oferty określonej w art. 66 i następnych K.C.

Szczegóły oferty

Symbol oferty NGK-LW-491
Powierzchnia 130,00 m²
Liczba pokoi 9
Piętro parter
Rodzaj budynku pawilon
Kaucja zabezp. 7000
Opłaty w czynszu administracja, ogrzewanie, woda, wywóz śmieci
Opłaty wg liczników prąd
Liczba pięter w budynku 1
Stan lokalu dobry
Stan prawny Spółdzielcze własnościowe
Typ kaucji dwumiesięczna
Mies. czynsz admin. 1 008 PLN
Okna PCV
Instalacje dobre
Rodzaj lokalu wielopoziomowy
Przeznaczenie lokalu handlowo-usługowy, magazynowy
Gaz brak
Woda tak
Dojazd asfalt
Otoczenie zabudowa wielorodzinna
Ogrzewanie centralne
Alarm tak
Usytuowanie dwustronne
Położenie lokalu ruchliwa ulica
Witryna wystawowa duża
Wejście od ulicy

Lokalizacja

Podobne oferty

lokal na wynajem - Szczecin, Centrum

lokal na wynajem

Szczecin, Centrum
  78,00 m2 35,00 zł/m2
lokal na wynajem - Szczecin, Centrum

lokal na wynajem

Szczecin, Centrum
  80,00 m2 50,00 zł/m2
lokal na wynajem - Szczecin, Centrum

lokal na wynajem

Szczecin, Centrum
  60,00 m2 56,67 zł/m2
lokal na wynajem - Szczecin, Centrum

lokal na wynajem

Szczecin, Centrum
  90,00 m2 50,00 zł/m2

Napisz do nas

Proszę wypełnić to pole
Proszę wypełnić to pole
Proszę wypełnić to pole
Proszę wypełnić to pole

Ta strona wykorzystuje pliki cookies w celach statystycznych oraz w celu dostosowania naszych serwisów do indywidualnych potrzeb klientów. Zmiany ustawień dotyczących plików cookie można dokonać w dowolnej chwili modyfikując ustawienia przeglądarki. Korzystanie z tej strony bez zmian ustawień dotyczących cookies oznacza, że będą one zapisane w pamięci urządzenia.

rozumiem