Szczecin, Pomorzany, Klemensiewicza

Mieszkanie na wynajem

Opis nieruchomości

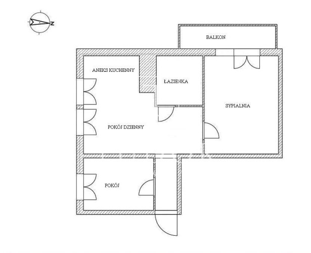
Do wynajęcia mieszkanie 3 pokojowe, z balkonem, położone na Pomorzanach przy ul. Klemensiewicza.

Mieszkanie w bardzo dobrym standardzie. W pokojach na podłodze nowa deska dębowa, ściany gładzone, malowane stolarka drzwiowa wewnętrzna bezprzylgowa, zamki magnetyczne. Nowe trzyszybowe okna PCV z filtrem UV - okna weneckie, nie są potrzebne rolety lub zasłony. Parapety wewnętrzne wykonane z granitu królewskiego z zatopionymi żyłkami złota.
Kuchnia w formie aneksu umeblowana i wyposażona w sprzęt AGD: płyta indukcyjna, piekarnik elektryczny, zabudowana kuchenka mikrofalowa, zmywarka oraz nowa, zabudowana lodówka z zamrażalką. Podłoga w części aneksu i fartuch roboczy wykonane z marmuru. Nad aneksem podwieszany sufit, docieplony wełną akustyczną.
Łazienka razem z wc - bardzo duża kabina prysznicowa z odpływem liniowym i krzesełkiem, wyposażona w radio bluetooth - sterowane smartfonem. Podłogi i ściany wyłożone marmurem. 
W sypialniach na podłogach deska dębowa, okna trzyszybowe okna PCV z filtrem UV - okna weneckie, zamontowane inteligentne oświetlenie sterowane smartfonem.
Przedpokój - podłoga marmurowa, ściany częściowo wyłożone egzotycznym drewnem teak.

Mieszkanie zaaranżowane w nowoczesnym stylu - salon otwarty na przedpokój, połączony z aneksem kuchennym, duża sypialnia z balkonem i mały pokój. Łazienka połączona z wc. Lokal po remoncie generalnym. 
Ekspozycja okien południowo - zachodnia (salon z aneksem i mały pokój od strony południowej, duża sypialnia z balkonem od strony zachodniej). Ogrzewanie i ciepła woda z sieci miejskiej, czynsz do wspólnoty wynosi 873,32 zł miesięcznie i uwzględnia wodę zimną, ciepłą oraz ogrzewanie. Do mieszkania przynależy piwnica.

Mieszkanie puste, właściciel nie partycypuje w kosztach umeblowania.

Wieżowiec w którym znajduje się mieszkanie posiada wjazd dla osób niepełnosprawnych bezpośrednio do windy - brak barier architektonicznych. Wydanie lokalu od ręki.

OPŁATY:
- czynsz najmu 2 700 zł,
- czynsz do wspólnoty 873,32 zł,
- opłaty za zużycie energii elektrycznej,
- okresowe rozliczenia zużycia wody zimnej, ciepłej i ogrzewania,
- kaucja 2 miesięczna, możliwość zapłaty w dwóch ratach,
- najem okazjonalny, koszt notariusza 500 zł.

Zapraszam na prezentację. Polecam.

Nota prawna

Opis oferty zawarty na stronie internetowej sporządzany jest na podstawie oględzin nieruchomości oraz informacji uzyskanych od właściciela, może podlegać aktualizacji i nie stanowi oferty określonej w art. 66 i następnych K.C.

Szczegóły oferty

Symbol oferty NGK-MW-479
Powierzchnia 52,82 m²
Powierzchnia użytkowa 52,82 m²
Liczba pokoi 3
Piętro 1
Rodzaj budynku wieżowiec
Technologia budowlana płyta
Kaucja zabezp. 5400
Opłaty w czynszu administracja, CO, fundusz remontowy, ogrzewanie, Winda, woda, woda ciepła, wywóz śmieci
Opłaty wg liczników prąd
Liczba pięter w budynku 11
Stan lokalu wysoki standard
Stan prawny SPÓŁDZIELCZE WŁASNOŚCIOWE Z KW
Typ kaucji dwumiesięczna
Mies. czynsz admin. 873 PLN
Okna PCV 3 szyby, ciepły montaż
Instalacje dobre
Balkon loggia
Liczba balkonów 1
Rok budowy 1976
Plac zabaw tak
Widok na inne budynki
Gaz brak
Woda ciepła - miejska
Dojazd asfalt
Otoczenie zabudowa wielorodzinna
Ogrzewanie C.O. miejskie
Umeblowanie brak
Winda tak
Liczba wind 2
Usytuowanie narożne
Przystosowania dla niepełnosprawnych tak
Klucze tak

Lokalizacja

Podobne oferty

mieszkanie na wynajem - Szczecin, Stare Miasto

mieszkanie na wynajem

Szczecin, Stare Miasto
  45,00 m2 56,67 zł/m2
mieszkanie na wynajem - Szczecin, Stare Miasto

mieszkanie na wynajem

Szczecin, Stare Miasto
1 pokój 24,00 m2 79,17 zł/m2
mieszkanie na wynajem - Szczecin, Stare Miasto

mieszkanie na wynajem

Szczecin, Stare Miasto
2 pokoje 50,00 m2 54,00 zł/m2
Wirtualny spacer
mieszkanie na wynajem - Szczecin, Podzamcze

mieszkanie na wynajem

Szczecin, Podzamcze
2 pokoje 60,00 m2 48,33 zł/m2

Napisz do nas

Proszę wypełnić to pole
Proszę wypełnić to pole
Proszę wypełnić to pole
Proszę wypełnić to pole

Ta strona wykorzystuje pliki cookies w celach statystycznych oraz w celu dostosowania naszych serwisów do indywidualnych potrzeb klientów. Zmiany ustawień dotyczących plików cookie można dokonać w dowolnej chwili modyfikując ustawienia przeglądarki. Korzystanie z tej strony bez zmian ustawień dotyczących cookies oznacza, że będą one zapisane w pamięci urządzenia.

rozumiem