Na sprzedaż dom w zabudowie bliźniaczej. Całkowita powierzchnia budynku wynosi 156,24 m2, z czego powierzchnia użytkowa to 115,85 m2, w tym 17,03 m2 garażu. Działka, na której leży budynek, ma powierzchnię 318,25 m2.
Dom został solidnie zbudowany, fundamenty to konstrukcje betonowe zbrojone stalą, a dach pokryty jest dachówką ceramiczną. Ściany zbudowane są z cegieł porotherm, co gwarantuje doskonałą izolację. Ogrzewanie w domu jest gazowe, podłogowe, co zapewnia komfort i oszczędność energetyczną.
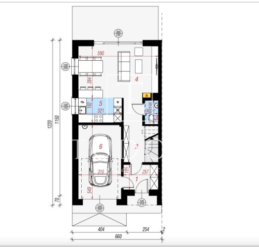
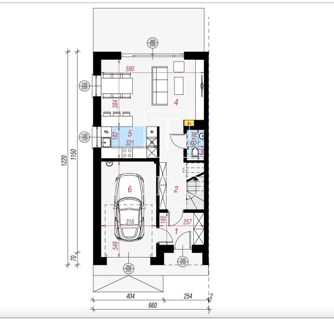
Parter:
salon połączony z aneksem kuchennym, wyjście na duży taras, wc , z holu przejście do garażu.
Na podłogach terakota, ściany gładzone malowane, wc wykończone w nowej glazurze i terakocie.
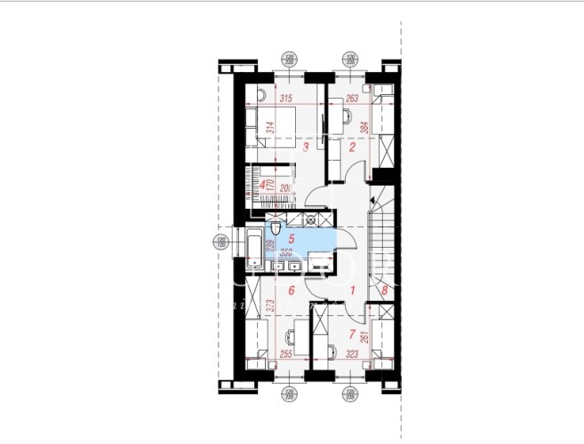
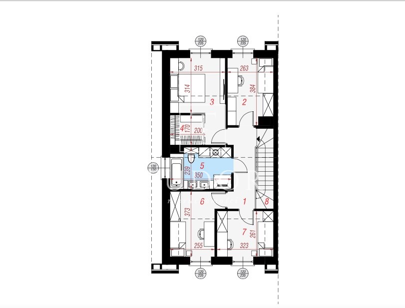
Piętro : 4 sypialnie ( podłogi panele), łazienka z kabina i wanną ( glazura i terakota)
Ogrzewanie w całym domu podłogowe z pieca gazowego dwuobiegowego, dodatkowo kominek
Zapraszamy na prezentacje.




Uwaga: mogą wystąpić dodatkowe opłaty za założenie księgi wieczystej oraz ustanowienie hipoteki.