Police (gw), Pilchowo

Dom na sprzedaż

Opis nieruchomości

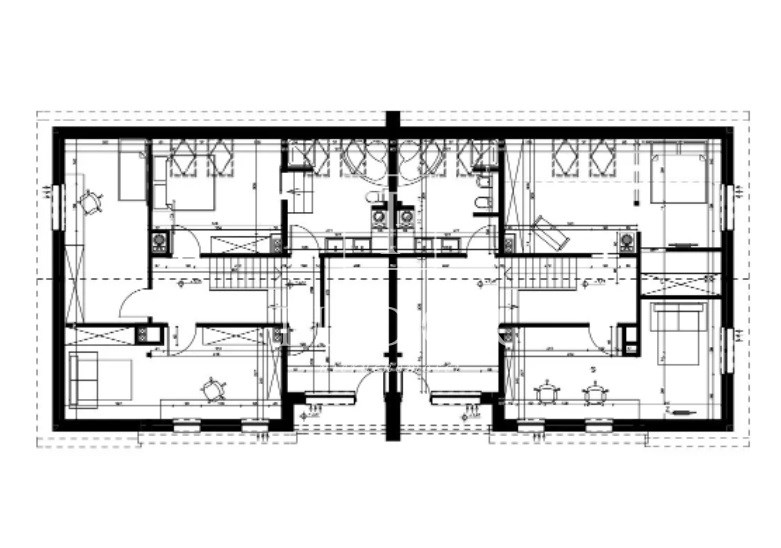
Na sprzedaż budynek w zabudowie bliźniaczej zlokalizowane w Pilchowie koło Szczecina, w bezpośrednim sąsiedztwie lasu.

Cała inwestycja obejmuje 4 budynki w zabudowie bliźniaczej dwulokalowej. Obecnie realizowany jest I etap, który obejmuje dwa budynki dwulokalowe.

Lokale o powierzchni 155,5m2 mogą pełnić funkcję komfortowego rodzinnego domu, ale również może być wykorzystane do prowadzenia działalności gospodarczej. Projekt przewiduje przestrzeń biurową na parterze i mieszkalną na piętrze, lub całość jako przestrzeń mieszkalną.

Załączone rzuty pokazują przykładowe układy pomieszczeń.

Aktualne zaawansowanie budowy pozwala na zmiany projektowe wewnątrz budynku według preferencji klienta.

Standard Premium!

- okna Salamander bluEvolution - średni współczynnik ciepła 0,75 W/m2*K, ciepły montaż okien

- antywłamaniowe drzwi wejściowe - klasa RC2, z szybą w doświetleniu P4 "Wiśniowski"

- brama garażowa "Wiśniowski"

- krycie dachówką "Brass"

- kominy spalinowe pod kominek "Hoch"

- pompa ciepła "Nibe"

- ogrzewanie podłogowe na parterze

 

Do każdego lokalu przynależy działka o powierzchni ok. 436 m2

Istnieje możliwość oddania nieruchomość w standardzie deweloperskim, po wcześniejszej uzgodnieniu ceny.

Nota prawna

Opis oferty zawarty na stronie internetowej sporządzany jest na podstawie oględzin nieruchomości oraz informacji uzyskanych od właściciela, może podlegać aktualizacji i nie stanowi oferty określonej w art. 66 i następnych K.C.

Szczegóły oferty

Symbol oferty KNG-DS-11345
Powierzchnia 155,50 m²
Powierzchnia użytkowa 155,50 m²
Powierzchnia działki 436 m²
Liczba pokoi 5
Rodzaj domu bliźniak
Liczba pięter w budynku 1
Garaż 1
Okna nowe
Balkon jest
Zagosp. działki niezagospodarowana
Ukształtowanie działki płaska
Kształt działki kwadrat
Pokrycie dachu dachówka
Stan budynku do wykończenia
Podpiwniczenie tak
Ogrodzenie działki brak
Woda tak - miejska
Ogrzewanie pompa ciepła
Tarasy jest
Drzwi antywłamaniowe tak
Prąd jest
Kanalizacja szambo

Kalkulator kredytowy

PLN
%
Wysokość raty

Kalkulator kosztów

PLN
PLN
PLN
PLN
PLN
PLN
%
PLN
Podatek od czynności cywilno-prawnych
Taksa notarialna (opłata notarialna)
VAT od taksy notarialnej (opłaty notarialnej)
Wniosek do WKW
VAT od wniosku do WKW
Prowizja agencji nieruchomości
VAT od prowizji agencji nieruchomości
Wypisy aktu notarialnego - około
RAZEM (cena + opłaty)

Uwaga: mogą wystąpić dodatkowe opłaty za założenie księgi wieczystej oraz ustanowienie hipoteki.

Podobne oferty

dom na sprzedaż - Police (gw), Pilchowo

dom na sprzedaż

Police (gw), Pilchowo
5 pokoi 155,00 m2 7 419,35 zł/m2
dom na sprzedaż - Police (gw), Trzebież

dom na sprzedaż

Police (gw), Trzebież
9 pokoi 330,00 m2 3 787,88 zł/m2
dom na sprzedaż - Police (gw), Trzebież

dom na sprzedaż

Police (gw), Trzebież
10 pokoi 418,00 m2 2 846,89 zł/m2
dom na sprzedaż - Police (gw), Przęsocin

dom na sprzedaż

Police (gw), Przęsocin
5 pokoi 180,00 m2 7 500,00 zł/m2

Napisz do nas

Proszę wypełnić to pole
Proszę wypełnić to pole
Proszę wypełnić to pole
Proszę wypełnić to pole

Ta strona wykorzystuje pliki cookies w celach statystycznych oraz w celu dostosowania naszych serwisów do indywidualnych potrzeb klientów. Zmiany ustawień dotyczących plików cookie można dokonać w dowolnej chwili modyfikując ustawienia przeglądarki. Korzystanie z tej strony bez zmian ustawień dotyczących cookies oznacza, że będą one zapisane w pamięci urządzenia.

rozumiem