Dobra (Szczecińska), Wołczkowo

Dom na sprzedaż

Opis nieruchomości

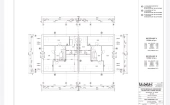
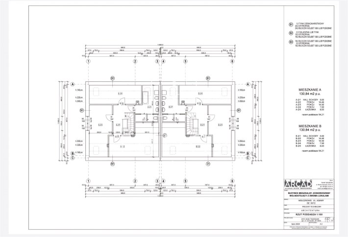
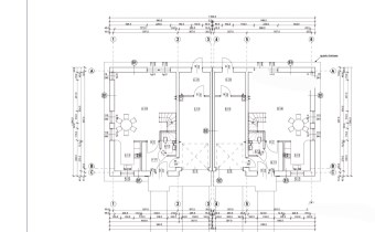
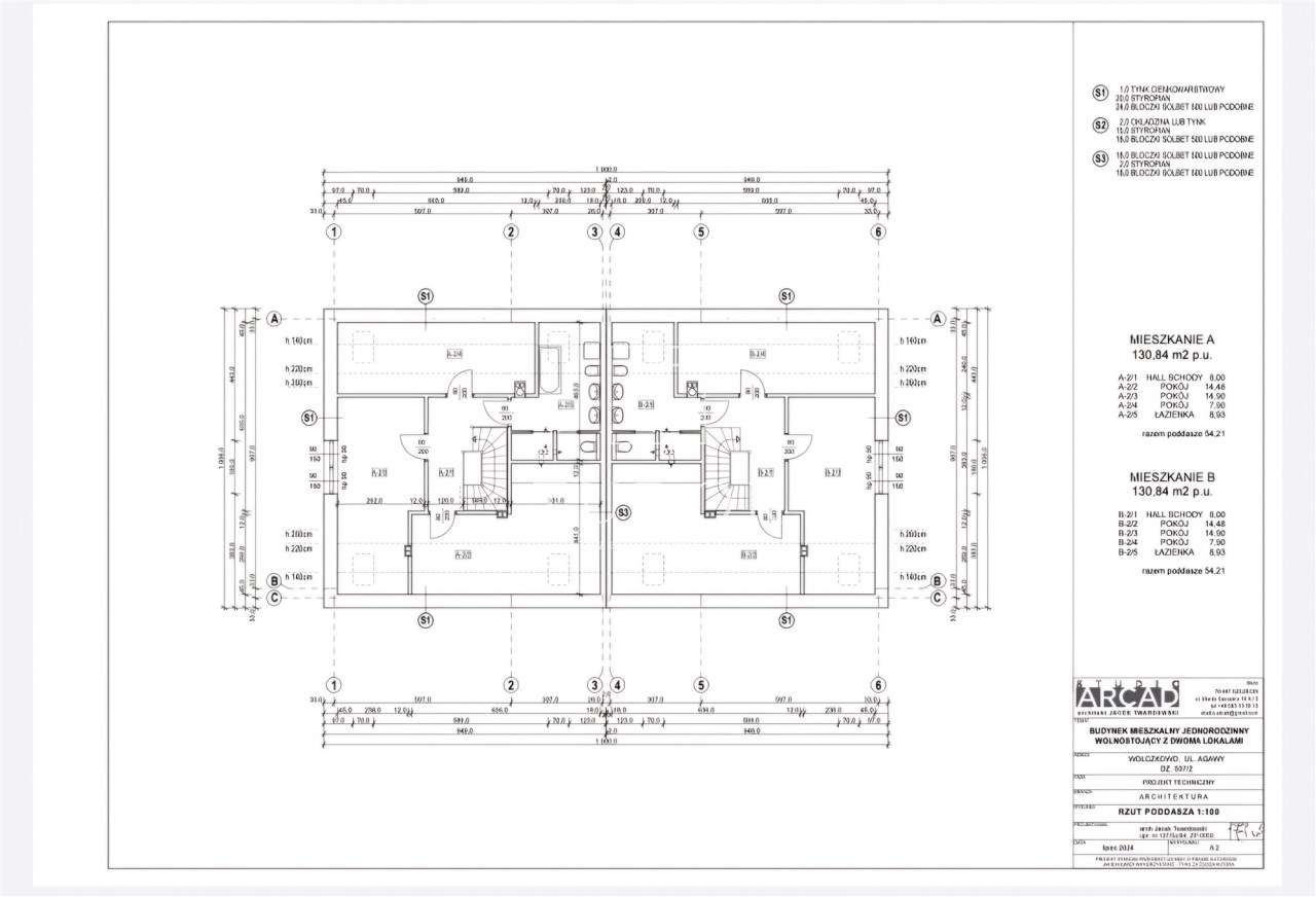
Dom jednorodzinny dwulokalowy na na działce 900 m2 , dla każdej połowy po 450 m2, każda połówka domu to ok.130m2 powierzchni użytkowej. W projekcie podwójna ściana z dylatacją między sąsiadami co jest wymagane w zabudowie bliźniaczej a czego nikt z deweloperów nie stosuje w przypadku budynków dwulokalowych. Dostępne media: prąd, woda z wodociągu miejskiego ( w trakcie budowy), gaz lub pompa ciepła, szambo.  Budynki w stanie surowym zamkniętym z elewacją i mediami doprowadzonymi do budynku . Klient na tym etapie ma możliwość zastanowienia się nad rodzajem ogrzewania, jak również decyduje o wszystkim co będzie robił wewnątrz budynku przy jego wykańczaniu.  Budynki do wydania w III kwartale 2025 roku

Nota prawna

Opis oferty zawarty na stronie internetowej sporządzany jest na podstawie oględzin nieruchomości oraz informacji uzyskanych od właściciela, może podlegać aktualizacji i nie stanowi oferty określonej w art. 66 i następnych K.C.

Szczegóły oferty

Symbol oferty LH1-DS-41431
Powierzchnia 130,00 m²
Powierzchnia działki 450 m²
Liczba pokoi 4
Rodzaj domu bliźniak
Standard
Garaż garaż
Stan prawny Własność
Okna PCV
Ukształtowanie działki płaska
Kształt działki prostokąt
Pokrycie dachu dachówka
Stan budynku do wykończenia
Rok budowy 2025
Dojazd droga gruntowa
Tarasy taras duży
Prąd jest

Pomieszczenia

Rodzaj kuchni aneks kuchenny - połączony z salonem
Liczba łazienek 2
Liczba przedpokoi 1

Kalkulator kredytowy

PLN
%
Wysokość raty

Kalkulator kosztów

PLN
PLN
PLN
PLN
PLN
PLN
%
PLN
Podatek od czynności cywilno-prawnych
Taksa notarialna (opłata notarialna)
VAT od taksy notarialnej (opłaty notarialnej)
Wniosek do WKW
VAT od wniosku do WKW
Prowizja agencji nieruchomości
VAT od prowizji agencji nieruchomości
Wypisy aktu notarialnego - około
RAZEM (cena + opłaty)

Uwaga: mogą wystąpić dodatkowe opłaty za założenie księgi wieczystej oraz ustanowienie hipoteki.

Podobne oferty

dom na sprzedaż - Dobra (Szczecińska), Dobra

dom na sprzedaż

Dobra (Szczecińska), Dobra
  108,96 m2 8 709,62 zł/m2
dom na sprzedaż - Dobra (Szczecińska), Wołczkowo

dom na sprzedaż

Dobra (Szczecińska), Wołczkowo
4 pokoje 112,00 m2 8 303,57 zł/m2
dom na sprzedaż - Dobra (Szczecińska), Dołuje

dom na sprzedaż

Dobra (Szczecińska), Dołuje
4 pokoje 85,85 m2 8 608,04 zł/m2
dom na sprzedaż - Dobra (Szczecińska), Grzepnica

dom na sprzedaż

Dobra (Szczecińska), Grzepnica
5 pokoi 100,00 m2 8 300,00 zł/m2

Napisz do nas

Proszę wypełnić to pole
Proszę wypełnić to pole
Proszę wypełnić to pole
Proszę wypełnić to pole

Ta strona wykorzystuje pliki cookies w celach statystycznych oraz w celu dostosowania naszych serwisów do indywidualnych potrzeb klientów. Zmiany ustawień dotyczących plików cookie można dokonać w dowolnej chwili modyfikując ustawienia przeglądarki. Korzystanie z tej strony bez zmian ustawień dotyczących cookies oznacza, że będą one zapisane w pamięci urządzenia.

rozumiem