Szczecin, Niebuszewo, Księcia Barnima III Wielkiego

Lokal na sprzedaż

Opis nieruchomości

Do sprzedaży działająca firma z branży monopolowej, położona w lokalu dwupoziomowym (parter z witryną plus piwnica) na Niebuszewie przy ul. Barnima.

Zakres sprzedaży:
- lokal spółdzielczy własnościowy,
- odstąpienie dzierżawy dodatkowej powierzchni 48,95 m2,
- wyposażenie lokalu,
- towar,
- możliwość przejęcia personelu.

Lokal położony jest w budynku handlowo-usługowym i posiada dwa osobne wejścia, dla klientów oraz drugie dla personelu i dostaw. Czynsz do spółdzielni wynosi 927,00 zł netto (plus 23% VAT). 

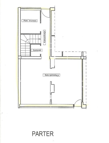
Rozkład pomieszczeń:
Parter (48,70 m2): sala sprzedaży z witryną, magazyn, pokój biurowy, wc. Można wynająć od spółdzielni dodatkowe 48,95 m2.
Piwnica (81,30 m2): cztery pomieszczenia magazynowe, zaplecze socjalne, wc.

Cena sprzedaży jest ceną netto i należy do nie doliczyć podatek VAT w stawce 23%. Cena brutto 1 045 500,00 zł.

Polecam.

 

Nota prawna

Opis oferty zawarty na stronie internetowej sporządzany jest na podstawie oględzin nieruchomości oraz informacji uzyskanych od właściciela, może podlegać aktualizacji i nie stanowi oferty określonej w art. 66 i następnych K.C.

Szczegóły oferty

Symbol oferty NGK-LS-388
Powierzchnia 130,00 m²
Liczba pokoi 10
Piętro parter
Rodzaj budynku pawilon
Stan lokalu dobry
Stan prawny Spółdzielcze własnościowe
Okna PCV
Instalacje dobre
Rodzaj lokalu jednopoziomowy
Przeznaczenie lokalu handlowo-usługowy, magazynowy
Gaz brak
Woda tak
Dojazd asfalt
Otoczenie zabudowa wielorodzinna
Ogrzewanie centralne
Alarm tak
Usytuowanie dwustronne
Położenie lokalu spokojna ulica
Witryna wystawowa duża
Wejście od ulicy

Lokalizacja

Kalkulator kredytowy

PLN
%
Wysokość raty

Kalkulator kosztów

PLN
PLN
PLN
PLN
PLN
PLN
%
PLN
Podatek od czynności cywilno-prawnych
Taksa notarialna (opłata notarialna)
VAT od taksy notarialnej (opłaty notarialnej)
Wniosek do WKW
VAT od wniosku do WKW
Prowizja agencji nieruchomości
VAT od prowizji agencji nieruchomości
Wypisy aktu notarialnego - około
RAZEM (cena + opłaty)

Uwaga: mogą wystąpić dodatkowe opłaty za założenie księgi wieczystej oraz ustanowienie hipoteki.

Podobne oferty

lokal na sprzedaż - Szczecin, Centrum, al. Piastów

lokal na sprzedaż

Szczecin, Centrum, al. Piastów
  177,00 m2 3 497,18 zł/m2
lokal na sprzedaż - Szczecin, Centrum

lokal na sprzedaż

Szczecin, Centrum
  108,60 m2 7 320,44 zł/m2
lokal na sprzedaż - Szczecin, Krzekowo

lokal na sprzedaż

Szczecin, Krzekowo
  230,00 m2 4 478,26 zł/m2
lokal na sprzedaż - Szczecin, Centrum

lokal na sprzedaż

Szczecin, Centrum
  93,00 m2 10 752,69 zł/m2

Napisz do nas

Proszę wypełnić to pole
Proszę wypełnić to pole
Proszę wypełnić to pole
Proszę wypełnić to pole

Ta strona wykorzystuje pliki cookies w celach statystycznych oraz w celu dostosowania naszych serwisów do indywidualnych potrzeb klientów. Zmiany ustawień dotyczących plików cookie można dokonać w dowolnej chwili modyfikując ustawienia przeglądarki. Korzystanie z tej strony bez zmian ustawień dotyczących cookies oznacza, że będą one zapisane w pamięci urządzenia.

rozumiem