Szczecin, Turzyn, Krzywoustego

Mieszkanie na sprzedaż

Opis nieruchomości

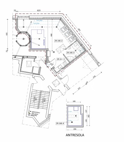
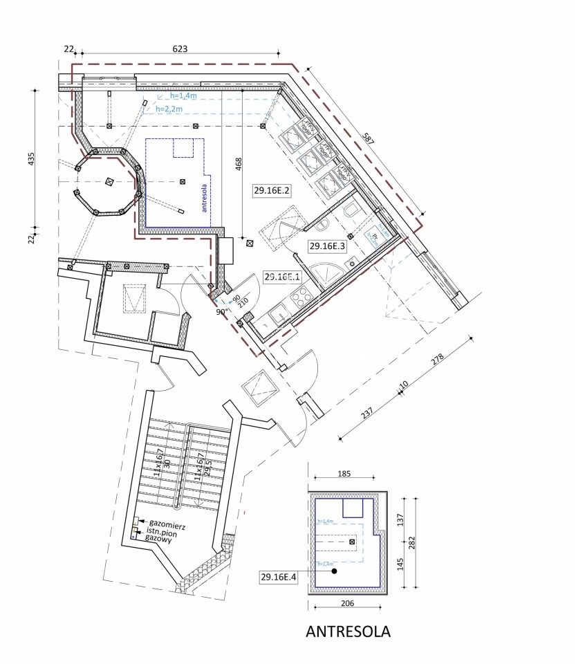
Do sprzedaży kawalerka z antresolą położona przy ul. Krzywoustego przy Turzynie.

Adaptacja poddasza:
Pierwszy poziom:
- pokój 25,70 m2,
- korytarz z aneksem kuchennym 5,55 m2,
- łazienka 4,17 m2,
Drugi poziom:
- antresola 0,91 m2.

Mieszkanie narożne o północno zachodniej ekspozycji okien. Powierzchnia użytkowa wg. dokumentacji projektowej to 36,33 m2 (całkowita 45,22 m2).

Lokal oddany będzie w standardzie deweloperskim z możliwością wykończenia lokalu pod klucz.

Standard: podłogi - płyta OSB oraz płyta ognioodporna, ściany i sufity wygładzone i
pomalowane na biało, zamontowany piec dwufunkcyjny z zamkniętą komorą spalania, grzejniki oraz rozprowadzone instalacje: elektryczna, gazowa i wodno – kanalizacyjna. W kuchni i w łazience wyprowadzone, w zależności od projektu, wszystkie podłączenia pod zlewy, umywalki, wanny lub kabiny prysznicowe, pralki, itp. Drzwi wejściowe antywłamaniowe, ognioodporne.

Podana cena jest ceną brutto, zawiera podatek VAT - kupujący nie płaci 2 % podatku PCC.

Polecam.

 

Nota prawna

Opis oferty zawarty na stronie internetowej sporządzany jest na podstawie oględzin nieruchomości oraz informacji uzyskanych od właściciela, może podlegać aktualizacji i nie stanowi oferty określonej w art. 66 i następnych K.C.

Szczegóły oferty

Symbol oferty NGK-MS-495
Powierzchnia 36,33 m²
Powierzchnia użytkowa 36,33 m²
Liczba pokoi 1
Piętro 4
Rodzaj budynku kamienica
Technologia budowlana cegła
Standard
Liczba pięter w budynku 4
Stan lokalu deweloperski
Stan prawny Własność
Okna drewniane
Instalacje nowe
Balkon brak
Widok na inne budynki
Gaz jest
Woda piec gazowy dwufunkcyjny
Dojazd asfalt
Otoczenie centrum miasta
Ogrzewanie gazowe
Umeblowanie brak
Usytuowanie jednostronne
Klucze tak

Lokalizacja

Kalkulator kredytowy

PLN
%
Wysokość raty

Kalkulator kosztów

PLN
PLN
PLN
PLN
PLN
PLN
%
PLN
Podatek od czynności cywilno-prawnych
Taksa notarialna (opłata notarialna)
VAT od taksy notarialnej (opłaty notarialnej)
Wniosek do WKW
VAT od wniosku do WKW
Prowizja agencji nieruchomości
VAT od prowizji agencji nieruchomości
Wypisy aktu notarialnego - około
RAZEM (cena + opłaty)

Uwaga: mogą wystąpić dodatkowe opłaty za założenie księgi wieczystej oraz ustanowienie hipoteki.

Podobne oferty

mieszkanie na sprzedaż - Szczecin

mieszkanie na sprzedaż

Szczecin
3 pokoje 63,81 m2 7 757,40 zł/m2
mieszkanie na sprzedaż - Szczecin, Podjuchy

mieszkanie na sprzedaż

Szczecin, Podjuchy
2 pokoje 45,23 m2 12 000,00 zł/m2
mieszkanie na sprzedaż - Szczecin, Pogodno

mieszkanie na sprzedaż

Szczecin, Pogodno
2 pokoje 60,00 m2 7 916,67 zł/m2
mieszkanie na sprzedaż - Szczecin, Centrum

mieszkanie na sprzedaż

Szczecin, Centrum
2 pokoje 43,10 m2 12 064,97 zł/m2

Napisz do nas

Proszę wypełnić to pole
Proszę wypełnić to pole
Proszę wypełnić to pole
Proszę wypełnić to pole

Ta strona wykorzystuje pliki cookies w celach statystycznych oraz w celu dostosowania naszych serwisów do indywidualnych potrzeb klientów. Zmiany ustawień dotyczących plików cookie można dokonać w dowolnej chwili modyfikując ustawienia przeglądarki. Korzystanie z tej strony bez zmian ustawień dotyczących cookies oznacza, że będą one zapisane w pamięci urządzenia.

rozumiem