Śródmieście | 70 m² | Parter | Potencjał na piękne mieszkanie
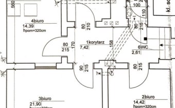
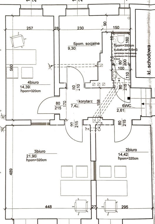
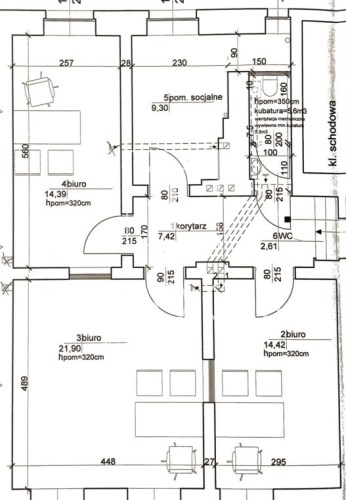
Na sprzedaż przestronne mieszkanie o powierzchni 70,04 m², położone na parterze zadbanej kamienicy przy ul. Ściegiennego w Szczecinie. To miejsce z charakterem i dużymi możliwościami – dziś funkcjonuje jako kancelaria, ale bez problemu można przywrócić mu funkcję mieszkalną i stworzyć komfortowe, klimatyczne wnętrze do życia.
Lokal przeszedł kapitalny remont w 2014 roku – wymieniono wszystkie instalacje, dzięki czemu technicznie jest w bardzo dobrym stanie. To daje spokój na lata i pozwala skupić się już tylko na aranżacji pod własne potrzeby.
Duże okna od strony ulicy zapewniają sporo naturalnego światła, co świetnie sprawdzi się zarówno w salonie, jak i w domowym biurze. Układ pomieszczeń daje swobodę – można tu stworzyć wygodne 2- lub 3-pokojowe mieszkanie, dopasowane do własnego stylu życia.
Najważniejsze informacje:
Lokalizacja w Śródmieściu to ogromny plus – wszędzie blisko: sklepy, komunikacja, szkoły, usługi. To miejsce, gdzie żyje się wygodnie na co dzień, bez konieczności korzystania z samochodu.
To propozycja dla osób, które szukają czegoś więcej niż standardowe mieszkanie – przestrzeni z potencjałem, w której można stworzyć naprawdę wyjątkowe wnętrze.
Jeśli czujesz, że to może być Twoje miejsce – odezwij się, pokażę Ci je na żywo.




Uwaga: mogą wystąpić dodatkowe opłaty za założenie księgi wieczystej oraz ustanowienie hipoteki.