Stargard

Mieszkanie na sprzedaż

Opis nieruchomości

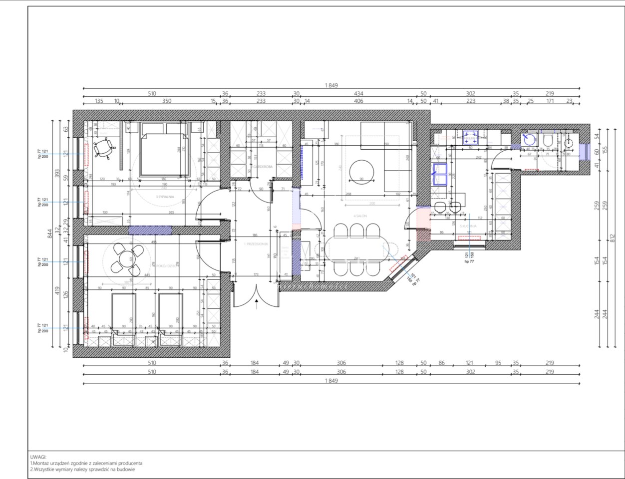
Na sprzedaż mieszkanie o powierzchni 93 m2 w Stargardzie przy ulicy Piłsudskiego. Nieruchomość o niepowtarzalnym klimacie, całkowicie odnowiona i wyremontowana. Z oryginalną, odrestaurowaną stolarką, pięknymi drewnianymi podłogami i wymienionymi wszystkimi instalacjami. 

Mieszkanie to:
  • przestronny korytarz z pięknymi drzwiami wejściowymi,
  • dwie duże sypialnie,
  • duży pokój z przejściem kuchni,
  • przestronna kuchnia z oknem oraz miejscem na jadalnię,
  • łazienka z kabiną prysznicową,
  • garderoba.
Do mieszkanie przynależy piwnica. W pomieszczeniach od ulicy wstawione najwyższej jakości okna trzyszybowe. Istnieje również możliwość zakupu mieszkania z gotowym projektem od architekta. Kuchnia przygotowana jest do wykończenia.

Oferta na wyłączność. Zapraszam do kontaktu. 

Nota prawna

Opis oferty zawarty na stronie internetowej sporządzany jest na podstawie oględzin nieruchomości oraz informacji uzyskanych od właściciela, może podlegać aktualizacji i nie stanowi oferty określonej w art. 66 i następnych K.C.

Szczegóły oferty

Symbol oferty TDR-MS-2052
Powierzchnia 93,00 m²
Liczba pokoi 3
Piętro 2
Rodzaj budynku kamienica
Standard
Liczba pięter w budynku 4
Garaż brak
Piwnica 10,00 m²
Stan lokalu wysoki standard
Okna PCV 3 szyby, ciepły montaż
Instalacje dobre
Balkon brak
Rok budowy 1930
Gaz jest
Woda ciepła - piecyk gazowy
Dojazd asfalt
Otoczenie centrum miasta
Ogrzewanie C.O. GAZOWE
Umeblowanie brak
Usytuowanie dwustronne

Lokalizacja

Kalkulator kredytowy

PLN
%
Wysokość raty

Kalkulator kosztów

PLN
PLN
PLN
PLN
PLN
PLN
%
PLN
Podatek od czynności cywilno-prawnych
Taksa notarialna (opłata notarialna)
VAT od taksy notarialnej (opłaty notarialnej)
Wniosek do WKW
VAT od wniosku do WKW
Prowizja agencji nieruchomości
VAT od prowizji agencji nieruchomości
Wypisy aktu notarialnego - około
RAZEM (cena + opłaty)

Uwaga: mogą wystąpić dodatkowe opłaty za założenie księgi wieczystej oraz ustanowienie hipoteki.

Napisz do nas

Proszę wypełnić to pole
Proszę wypełnić to pole
Proszę wypełnić to pole
Proszę wypełnić to pole

Ta strona wykorzystuje pliki cookies w celach statystycznych oraz w celu dostosowania naszych serwisów do indywidualnych potrzeb klientów. Zmiany ustawień dotyczących plików cookie można dokonać w dowolnej chwili modyfikując ustawienia przeglądarki. Korzystanie z tej strony bez zmian ustawień dotyczących cookies oznacza, że będą one zapisane w pamięci urządzenia.

rozumiem