Szczecin, Bezrzecze

Mieszkanie na sprzedaż

Opis nieruchomości

TYLKO U NAS ! Nie szukaj dalej !  OFERTA NA WYŁĄCZNOŚĆ 

W ofercie bezczynszowe mieszkanie w zacisznej ulicy Bezrzecza w Szczecinie,
na skraju ulic - Wronia i Różany Zakątek.

Jedno z czterech mieszkań, które mamy do zaprezentowania  mieści się w budynku dwulokalowym, w zabudowie bliźniaczej, na piętrze.

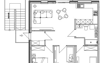
Na powierzchnię użytkową 72,17 m2 mieszkania składa się:
1.1 Wiatrołap 3,00
1.2 Komunikacja 7,93
1.3 Salon+ jadalnia 19,00
1.4 Kuchnia 7,59
1.5 Łazienka 6,31
1.6 Pokój 9,56
1.7 Pokój 9,04
1.8 Pokój 9,74


Przynależy do niego również taras  oraz W CENIE 2 MIEJSCA PARKINGOWE 
2 x miejsce postojowe 5x2,5 m

Budowa rozpoczęta w 2024 roku, wydanie mieszkania czerwiec/lipiec - stan deweloperski

INSTALACJE:
 WODOCIĄGOWA- woda z wodociągu miejskiego
 KANALIZACYJNA- odprowadzenie do sieci kanalizacji miejskiej
 CENTRALNEGO OGRZEWANIA- przy zastosowaniu kotła gazowego
 ELEKTRYCZNA-zasilanie kablem ziemnym
 WENTYLACJA MECHANICZNA

Budynki wentylowane za pomocą wentylacji mechanicznej z REKUPERACJI (odzyskiem ciepła), ogrzewanie podłogowe.

Prezentacja mieszkania w towarzystwie architekta wnętrz !

Serdecznie zapraszam do biura w celu zapoznania się szczegółowo z  ofertą.
oraz dokonania rezerwacji !
​​​​​​Pomagamy w uzyskaniu kredytu.

Nota prawna

Opis oferty zawarty na stronie internetowej sporządzany jest na podstawie oględzin nieruchomości oraz informacji uzyskanych od właściciela, może podlegać aktualizacji i nie stanowi oferty określonej w art. 66 i następnych K.C.

Szczegóły oferty

Symbol oferty LH1-MS-41415
Powierzchnia 72,17 m²
Powierzchnia użytkowa 72,17 m²
Liczba pokoi 4
Piętro 1
Rodzaj budynku bliźniak
Technologia budowlana silikat
Standard
Opłaty w czynszu -
Opłaty wg liczników woda, prąd, gaz
Liczba pięter w budynku 1
Garaż brak
Stan lokalu deweloperski
Okna PCV 3 szyby, ciepły montaż
Instalacje ELEKTRYCZNA, WODNA, GAZOWA
Balkon duży
Liczba balkonów 1
Liczba tarasów 1
Gaz jest
Woda piecyk gazowy
Dojazd droga utwardzona
Otoczenie zabudowa jednorodzinna
Ogrzewanie C.O. GAZOWE
Klucze tak

Pomieszczenia

Powierzchnia pokoi 19,00, 9,56, Pokój 9,04, 9,74 m2
Typ kuchni aneks kuchenny połączony z jadalnią i salonem
Rodzaj kuchni jasna z oknem
Powierzchnia kuchni 7,59 m2
Typ łazienki razem z wc
Liczba łazienek 1
Powierzchnia łazienki 6,31 m2
Liczba przedpokoi 2
Powierzchnia przedpokoi 10,93 m2

Kalkulator kredytowy

PLN
%
Wysokość raty

Kalkulator kosztów

PLN
PLN
PLN
PLN
PLN
PLN
%
PLN
Podatek od czynności cywilno-prawnych
Taksa notarialna (opłata notarialna)
VAT od taksy notarialnej (opłaty notarialnej)
Wniosek do WKW
VAT od wniosku do WKW
Prowizja agencji nieruchomości
VAT od prowizji agencji nieruchomości
Wypisy aktu notarialnego - około
RAZEM (cena + opłaty)

Uwaga: mogą wystąpić dodatkowe opłaty za założenie księgi wieczystej oraz ustanowienie hipoteki.

Podobne oferty

mieszkanie na sprzedaż - Szczecin

mieszkanie na sprzedaż

Szczecin
3 pokoje 88,00 m2 7 272,73 zł/m2
mieszkanie na sprzedaż - Szczecin, Centrum

mieszkanie na sprzedaż

Szczecin, Centrum
2 pokoje 47,67 m2 12 449,99 zł/m2
mieszkanie na sprzedaż - Szczecin, os. Słoneczne

mieszkanie na sprzedaż

Szczecin, os. Słoneczne
3 pokoje 64,00 m2 10 468,75 zł/m2
mieszkanie na sprzedaż - Szczecin, Pomorzany

mieszkanie na sprzedaż

Szczecin, Pomorzany
3 pokoje 81,80 m2 8 667,48 zł/m2

Napisz do nas

Proszę wypełnić to pole
Proszę wypełnić to pole
Proszę wypełnić to pole
Proszę wypełnić to pole

Ta strona wykorzystuje pliki cookies w celach statystycznych oraz w celu dostosowania naszych serwisów do indywidualnych potrzeb klientów. Zmiany ustawień dotyczących plików cookie można dokonać w dowolnej chwili modyfikując ustawienia przeglądarki. Korzystanie z tej strony bez zmian ustawień dotyczących cookies oznacza, że będą one zapisane w pamięci urządzenia.

rozumiem